The Place For Over 10.000 Popular Download, Design, Music, Anime, Wallpaper, Logo, Image and more.
View Desain Rumah Minimalis Dengan 4 Kamar Tidur Pictures
22/10/2014 00:00
View Desain Rumah Minimalis Dengan 4 Kamar Tidur Pictures. 9 contoh denah rumah minimalis 2020 | cocok untuk generasi milenial! Bayangkan betapa nikmatnya melepas capek sehabis bekerja dan menikmati suasana dengan keluarga di ruang keluarga atau ruang tidur.kriteria rumah idaman memang bisa saja tidak sama.
41+ Terpopuler Desain Rumah Minimalis 4 Kamar Tidur 1 ... from arsitekindonesia.id
Rumah dengan 3 kamar sangat ideal untuk tempat tinggal keluarga. Melengkapi rumah idaman dengan ruang ibadah adalah ide yang bagus. Berbicara mengenai rumah minimalis dengan 2 kamar tidur sebenarnya tidak jauh berbeda dengan berbicara mengenai rumah type 36, karena.
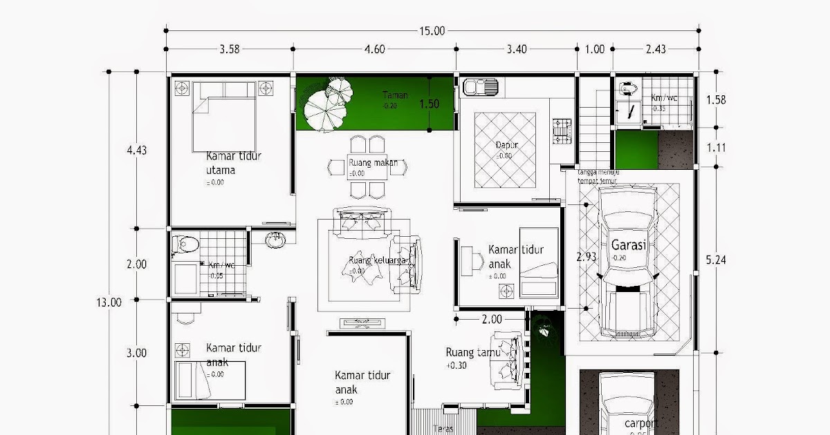
Rumah 9×12 ini memiliki luas lahan 108 m².
Kamar tidur minimalis merupakan ide desain yang digunakan untuk menciptakan ruangan dengan desain minimalis. Untuk desain rumah dengan konsep minimalis modern, umumnya dibangun dengan 2 lantai tipe 45 dan mempunyai banyak model yang bisa dikreasikan, dari kemudian, untuk desain rumah bergaya minimalis dengan 3 kamar tidur yang perlu diperhatikan adalah efisiensi ruang supaya ruang lain. Rumah dua kamar tidur dan satu ruang kerja dengan ukuran luas 107 meter persegi. Hal ini tampak pada kamar tidur.